避难硐室门 避难硐室防护门
避难硐室门,避难硐室防护门,避难硐室密闭门
避难硐室门

一、避难硐室门用途
矿井永久避难硐室隔离门是我公司依据《井下避难硐室设计标准》、《煤矿井下紧急避险系统建设管理规定》、《煤矿井下避难所建设基本要求》等要求而设计的,主要用于煤矿井下避难硐室过渡室与生存室之间,向外开启,起到能防水、防火、防毒、防冲击波的作用。
二、避难硐室门的性能特点
1、参照航舰门紧锁装置,采用八紧锁四方向快速锁紧装置,灵活快速;
2、采用航空螺旋开关门装置,开关稳定可靠;
3、门面采用弧形流线设计,抗瞬间冲击波能力大大提高;
4、观察窗采用高强度钢化玻璃,抵挡高强冲击波,便于观察;
5、防护密闭、气密性好、阻止有毒气体进入;

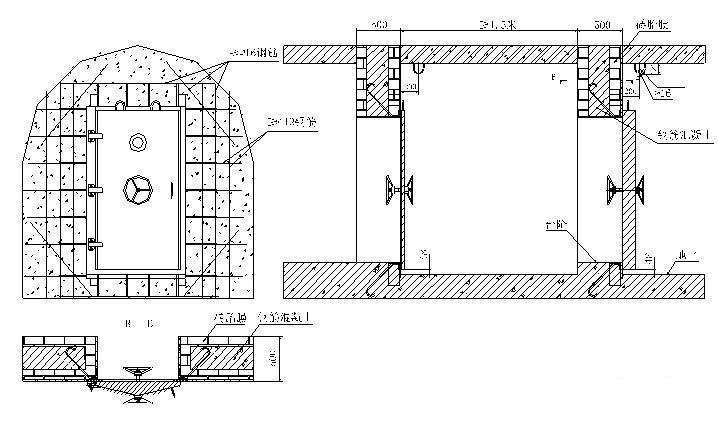
三、避难硐室门的规格图纸

矿用隔离门的常用规格品种有:800*1600
其它规格品种的矿用隔离门,可按用户要求尺寸定做。
四、避难硐室门的技术参数
1、最大承受压力 3.5Mpa
2、抗冲击波超压能力 3000Kpa
3、气密性:在正压 500±20Pa、泄压速率≤350±20Pa/H;
4、观察窗 直经100 mm
五、避难硐室门的安装要求及方法
1、 安装要求
A、避难硐室隔离门安装在避难硐室外侧,墙体厚度、强度、四周槽深等应符合《煤矿井下紧急避险系统建设管理规定》第19条规定;
B、隔离门安装时,两道门均向外打开;
C、安装后应铅直平整,开启灵活。
2、避难硐室门的使用
A、需要打开隔离门时,从里外都应按箭头指示方向转动手轮,打开紧锁装置,推拉门扇,***可打开隔离门;
B、将隔离门关闭后,按箭头指示方向转动手轮,将隔离门紧锁装置锁紧,确保隔离门密封可靠;
C、紧急避险时,隔离门的使用应按照避险矿工应急避险系统有关规定正确使用隔离门。
3、避难硐室门的维护与管理
A、隔离门应悬挂隔离门使用说明,指导避险矿工正确使用,
B、凡有防锈料脱落或碰掉处均应随时补涂,门扇如锈蚀深度达1mm时,必须更换门体。
C、密封橡胶条如有损伤或脱胶应及时更换或粘接,密封条更换期为1年左右。
D、门枢转动部分如有锈蚀应擦洗干净并应重新涂油。
E、矿用隔离门务必涂上防锈油漆,达到较好的防腐要求。
手机:178538629937 电话:17853862993 EMAIL:1552090452@qq.com
公司地址:泰安市创新机械有限公司
Copyright © 2018-2019 泰安市创欣机械有限公司 All Rights Reserved. ICP备:鲁ICP备2021014753号
联系电话
微信扫一扫
