斜井防爆门 斜风井防爆门
斜井防爆门 斜风井防爆门
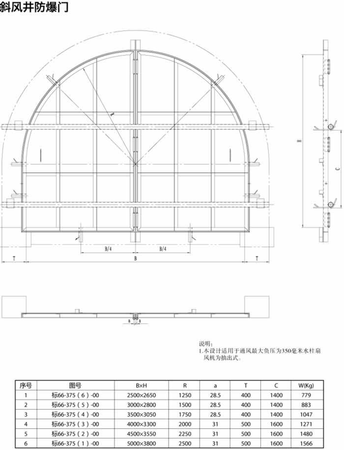
斜风井防爆门
斜风井防爆门用于回风斜井井口,是煤炭工业部武汉煤炭研究院设计,产品质量标准和检测标准严格执行Q/WMS-3015-2006(斜风井防爆门)。本斜风井防爆门为门框(门框分对称件,每件为角钢组焊框架构件)、门扇(门扇为钢板、井字形分布角钢等组焊而成)和反风装置(反风装置采用钢管插栓。)等部件组成,密封方式采用δ3橡胶板密封。
斜井防爆门主要用于矿山斜风井口。当井下发生危险时,冲击波将该防爆门向外冲开,起到释放并缓解斜风井冲击波的作用。
斜风井防爆门国标图纸

斜风井防爆门参数
序号 图 号 规格
1 标66-375(1)--00 5000×3800
2 标66-375(2)--00 4500×3550
3 标66-375(3)--00 4000×3300
4 标66-375(4)--00 3500×3050
5 标66-375(5)--00 3000×2800
6 标66-375(6)--00 2500×2650
斜风井防爆门使用说明
1、本设计适用于通风最大负压为350毫米水柱扇风机为抽出式;
2、件号7焊接钢管在反风时应用,正常工作时不用要妥善保管;
3、防爆门的运输应采取必要措施防止变形;
4、防爆门的门框安装要与采矿专业密切配合,严防变形;
5、门框与门扇的配合,力求紧密门框中柱后部加胶皮防止漏风;
6、件号3合页安装时加油润滑要保证灵活;
7、防爆门全部应涂红色樟丹,再涂黑色油漆。
斜风井防爆门安装要求及方法
1、安装要求:
斜风井防爆门安装时,依照安装方法,安装后应铅直平整,开启灵活。然后将防爆门关闭,将挡杆放置在门框两侧的固定架上,并在外侧门的下方用沙石或土将门掩埋10厘米。
2、安装方法:
(1)先整理并测量巷道口的宽度和高度,保证防爆门整体(包括予埋件)放入。
(2)将两扇门平放在地面,整理好两门中间的密封橡胶板,用螺栓将两门固定好,即待安装。
(3)将方向调正,保证防爆门只能向外开,然后将两扇门同时用力立起在井口。
(4)调整好后,用木撑将整体门固定。
(5)按井口设计开始砌墙固定。
(6)墙体凝固后,将防爆门关闭,将挡杆放置在门框两侧的固定架上,并在外侧门的下方用沙石或土将门掩埋10厘米,即可正常使用。
3、维护方法:
(1)凡有防锈料脱落或碰掉处均应随时补涂。
(2)密封橡胶条如有损伤或脱胶应及时更换或粘接,密封条更换期为2年左右。
(3)门枢转动部分如有锈蚀应擦洗干净并应重新涂油。
手机:178538629937 电话:17853862993 EMAIL:1552090452@qq.com
公司地址:泰安市创新机械有限公司
Copyright © 2018-2019 泰安市创欣机械有限公司 All Rights Reserved. ICP备:鲁ICP备2021014753号
联系电话
微信扫一扫
